Sauna Abluft Ruhebereich Kondenswasser

Hier der Bereich wo Du technische Fragen stellen kannst und Deine eigene Erfahrungen für die Allgemeinheit veröffentlichen kannst.
Antworten
saunaurb
Beiträge: 4
Registriert: 18. Februar 2019, 10:05

Sauna Abluft Ruhebereich Kondenswasser

Beitrag von saunaurb »

Hallo zusammen

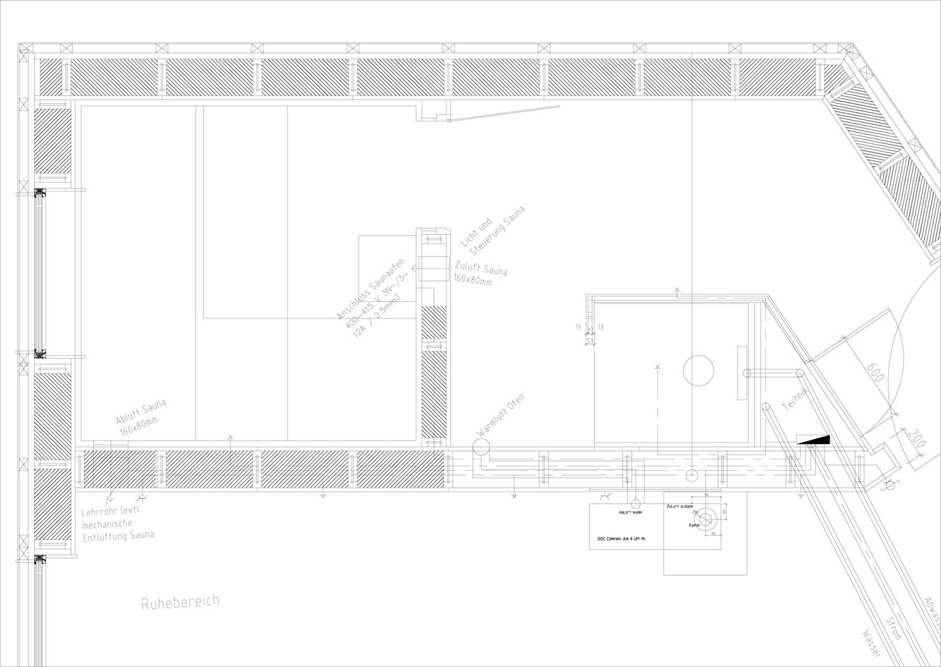
Ich melde mich mal wieder mit meinem Saunaprojekt. Es handelt sich um einen Anbau ans Haus mit Sauna/Du/Ruhebereich.
Ich bin mir jedoch nicht sicher ob die Abluft (wir machen ca. 80% Biosauna und 20% finnisch) bei der hohen Feuchte der Biosauna beim Auslass im Bereich des Ruheraums kondensiert, da sie ja abkühlt. So dass es dort anfängt zu Tropfen. Hat jemand Erfahrung damit?
Und in welcher Höhe sollte der Abluftkanal sein, da findet man alles im Netz, von ganz unten bis ganz oben...
Hier den Grundriss dazu
Zuluft_Abluft_Sauna.jpg
Zuluft_Abluft_Sauna.jpg (172.06 KiB) 17406 mal betrachtet
Antworten